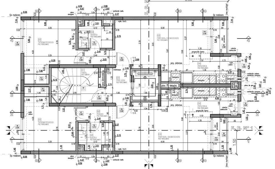
EDIFICIO MATHEU 3157

 

1 2 3 4 5 6